property details

  • 2714Square Feets
  • 4 Bedrooms
  • Bathrooms
  • Print This Details
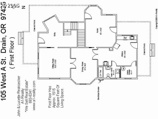
105 W A ST, Drain, OR 97435
Residential $275000

Drains, Oregon, USA.

Property Details
image
  • Address : 105 W A ST, Drain, OR 97435

    ZIP : 97435

  • City : Drain

    counrty :

  • Area : realestate

Property features
  • MLS: 6038607

  • Year: 1894

  • Type: Residential

  • Zip: 97435

Property description
  • Description: Between I-5 and the Coast on Hwy 38 in Drain, OR. 30+ miles from Eugene, 20+ miles from Roseburg. 100+ year old magnificent Victorian/Queen Ann lady. Restoration in progress (upstairs not done). Wonderful for Historic Home and/or Bed & Breakfast, Antique Shop.

Related properties

This time there's no stopping us. Straightnin' the curves. Flatnin' the hills Someday the mountain might get ‘em but the law never will. The weather started getting rough - the tiny ship was tossed.

© 2026 Realtor. All rights reserved